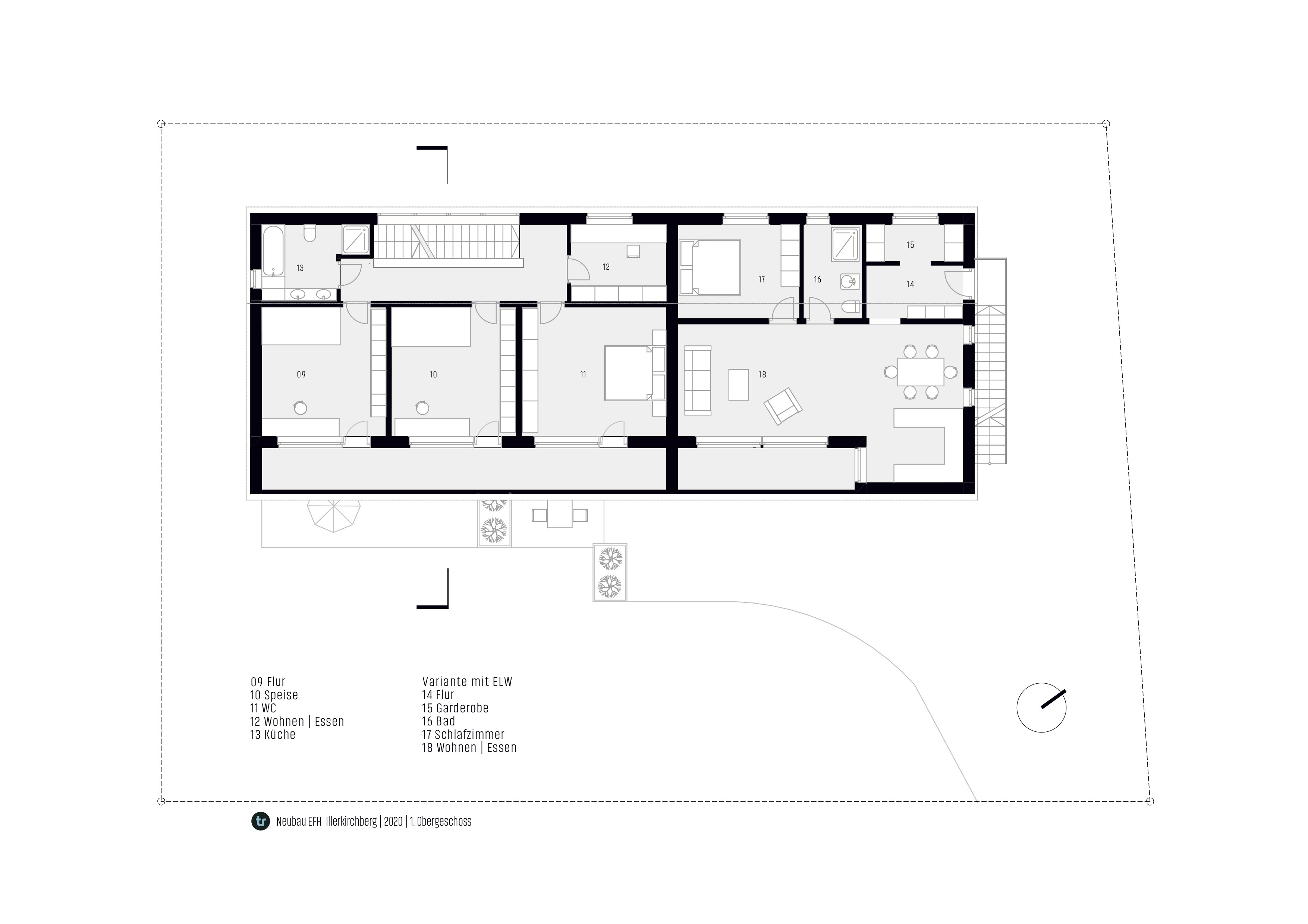
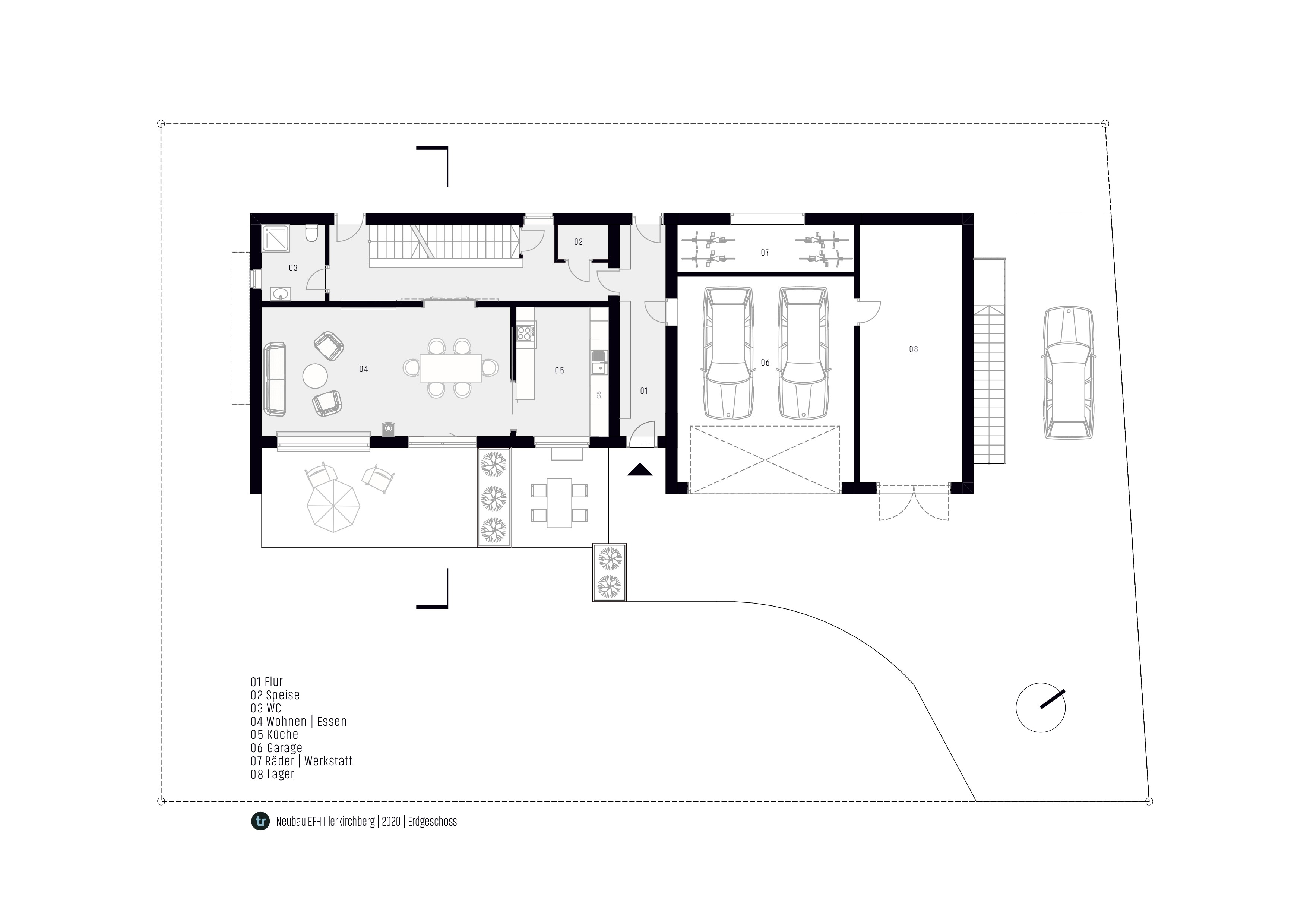
11.03.2021 Planung EFH Neubau eines EFH in Illerkirchberg ist aktuell noch in der Planungsphase - so könnte es aussehen… Zurück scrollen Weiter scrollen