
Wohnquartier am Lettenwald
- 2012
- BRI 9.248 m3
- Mehrfachbeauftragung
Hullak Rannow wurde von der FLÜWO Bauen und Wohnen eG zu dieser Mehrfachbeauftragung eingeladen.
Zum Entwurf
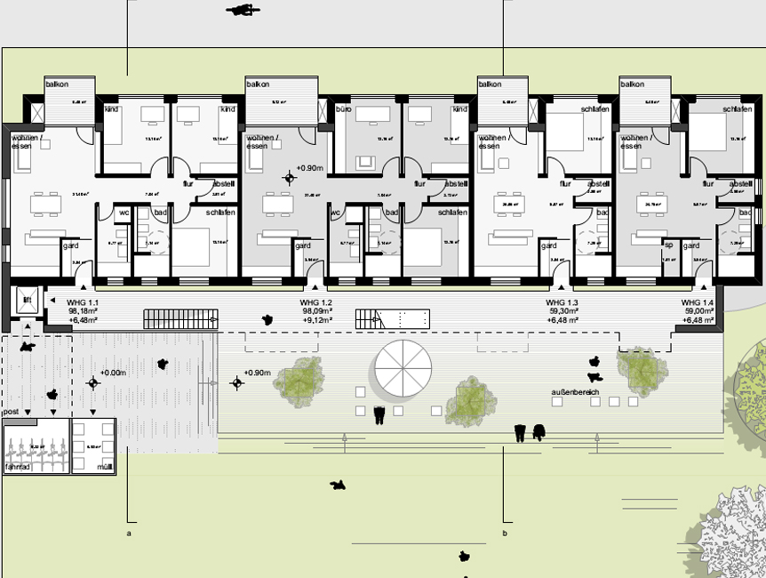
Der Baukörper besteht aus zwei sich verschneidenden Elementen. Der nach Osten orientierte Baukörper steht fest auf dem Boden und bildet den Rücken. Während der nach Westen gerichtete Baukörper schwebt und ganz leicht wirkt. Der lange Baukörper bildet eine städtebauliche Kante nach Westen. Durch die räumliche Öffnung zwischen dem eigenen und dem Nachbargebäude entsteht eine klare Adressbildung. Der Innenhof wird über einen halböffentlichen Bereich mit Nebengebäude erschlossen. Die oberirdische Ausformung der Tiefgarage in Verbindung mit dem Zuschnitt des Gebäudes bilden ein für die Größe des Grundstücks differenzierten Außenbereich, der vielfältig genutzt werden und fließend in den benachbarten Grünbereich übergehen kann. Der Laubengang erschließt im Osten nicht nur die Wohnungen, sondern ist gleichzeitig Kommunikationszone und halbprivater Aufenthaltsbereich mit Blick in den benachbarten Park.
- Bauherr
- FLÜWO Bauen und Wohnen eG
- Planung
- Hullak Rannow Architekten
- Team
- VIS°UM (Visualisierung)