
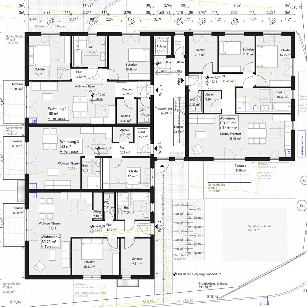
Wohnen am Schlossberg
Neubau Mehrfamilienhaus + Tiefgarage
- 2018
- BRI 5.799 m3
- LP 1-5
Lage
Das Mehrfamilienhaus wurde für die Schiedel Wohnbau GmbH geplant. Das Gebäude befindet sich an einer markanten Stelle auf dem Erbacher Schlossberg. Ursprünglich befand sich auf dem Grundstück ein alter Hof. Dieser wurde abgerissen und dafür ein Ein- und ein Mehrfamilienhaus neugebaut.
- Bauherr
- Schiedel Wohnbau GmbH
- Planung
- Hullak Rannow Architekten
- Team
- Bieger & Maidel
Erbacher Planungsbüro GmbH
IB Will
Energieplan Sieger
Patrick Schmidt (Fotos)