WBW Ulm-Unter­weiler

Realisierungs­wettbewerb „Neubau einer Grund­schule mit Kinder­tages­einrichtung"
  • 2013
  • BRI 5.868 m3
  • LP 1-3

Hullak Rannow Architekten und Maurer Architekten nahmen als gesetzter Teilnehmer an diesem Wettbewerb für das Zentrales Gebäudemanagement der Stadt Ulm teil.

Dem Konzept des Bildungshauses liegt die enge Verzahnung von Kindergarten und Grundschule zugrunde. Die ehemals in zwei getrennten Gebäuden untergebrachten Nutzungen gehen im Neubau „Hand in Hand“.

Bauherr
Stadt Ulm, Zentrales Gebäudemanagement
Planung
Maurer Architekten und Hullak Rannow Architekten
Team
neu.zeit.raum

Städtebau

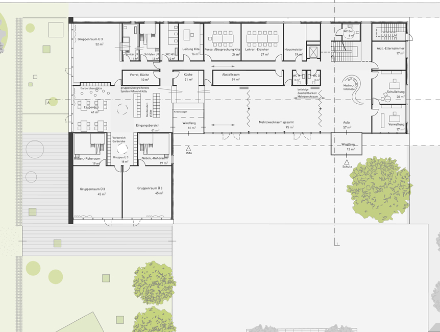
Das Gebäude liegt am Dorfplatz und bildet wie die bestehende Mehrzweckhalle eine starke Raumkante. Im Osten wird der Dorfplatz von einer Baumreihe gefasst. Im Süden öffnet sich der Platz zur Landschaft hin. Die Gebäude sind zum Platz hin orientiert. Unter dem, dem Gebäude vorgelagerten Bügel, verzahnen sich Innen- und Außenbereich. 

Architektur

Der Baukörper gliedert sich in zwei Elemente. Wie die Nutzungen Kindergarten und Schule in einander greifen, so schieben sich die zwei Gebäudeteilen in einander. Dem westlich gelegenen Gebäudeteil (Kita) mit Schwerpunkt im Erdgeschoss, und dem östlich gelegenen Gebäudeteil (Schule) mit Schwerpunkt im Obergeschoss, ist ein halböffentlicher Außenraum vorgelagert. Hier schließt ein großer multifunktionaler Veranstaltungsraum an, der in den Außenbereich erweitert werden kann. Zum inneren Konzept gehören klar ablesbare Gruppen- und Klassenräume sowie der Mehrzweckraum. Alle anderen Räume haben eine untergeordnete Nutzung und ordnen sich der Struktur unter. Die Anordnung der Räume orientiert sich an der solaren Ausrichtung. Besonders im Kindergartenbereich hat der Bezug zum Außenraum eine wichtige Bedeutung. Die großzügige Verglasung der Gruppenräume soll freie Sichtbeziehungen von innen nach außen und umgekehrt ermöglichen.