
Villa Duttenhofer
Sanierung, Umnutzung, Ergänzung
- 2015
- BGF 1.500 m2
- LP 1-5
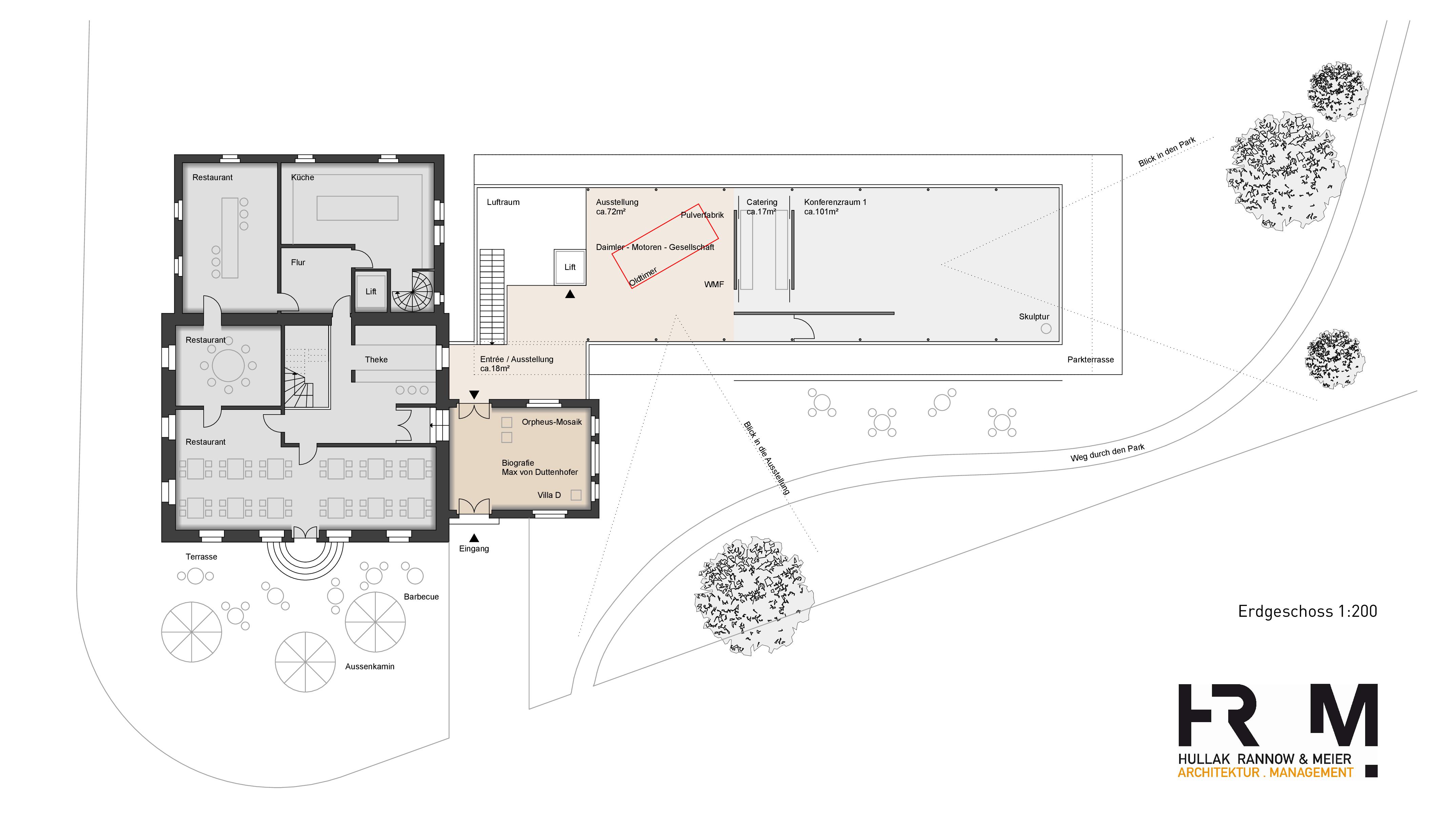
Nutzungskonzept
Das Nutzungskonzept für die ‚Villa Duttenhofer’ basiert auf dem ‚Stiftungsgedanken’ ihres Erbauers Max von Duttenhofer aus dem Jahr 1918, der eine museale Nutzung vorsah. Neben einer gastronomischen Nutzung im EG und UG der Villa und einem Dienstleister im 1. und 2. OG werden öffentlich zugängliche Ausstellungsflächen mit angegliederten Konferenzräumen in einem Neubau geschaffen. Die Dokumentation, die sich durch verschiedene Bereiche des Neubaus erstreckt, soll der Bedeutung der herausragenden Unternehmerpersönlichkeit Max von Duttenhofers gerecht werden.
- Bauherr
- ACTIV GROUP
- Planung
- HRM Hullak Rannow Maier Architektur.Management
- Team
- VIS°UM (Visualisierung)