
Uki
Umbau Reiheneckhaus
- 2010
- BRI 1.155 m3
- LP 1-9
Ausgangslage
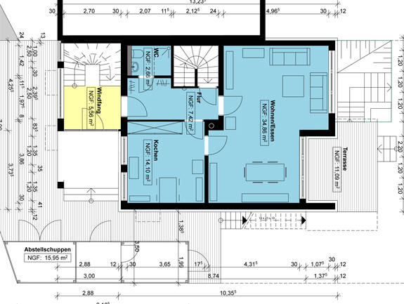
Das umgebaute Reihenendhaus liegt in Unterkirchberg einer Teilgemeinde Illerkirchbergs, angrenzend an den Stadtkreis Ulm. Das Haus ist Teil von drei typischen Reihenhauszeilen aus den Siebziger Jahren, die durch die Kreisbaugesellschaft m.b.H. Ulm/Donau errichtet wurden. Im Gebiet findet momentan ein Umbruch statt. Viele Häuser werden modernisiert, an die neuen Standards angepasst oder auch durch den Generationenwechsel umgebaut. Ziel der Bauaufgabe war es hier nun, mehrere verschiedene Aufgaben (energet. Sanierung des Gebäudes, Vergrößerung des Hauses zum 2-Fam.-Haus) zu erfüllen und möglichst wenig in die gewachsenen Strukturen des Gebietes einzugreifen.
- Bauherr
- Frau B.
- Planung
- Jens Rannow
- Team
- Martina Strilic (Fotos)