
Spatzennest
Erweiterung des bestehenden Kindergartens um eine 1-gruppige Kita
- 2020
- BRI 568 m3
- LP 1-8
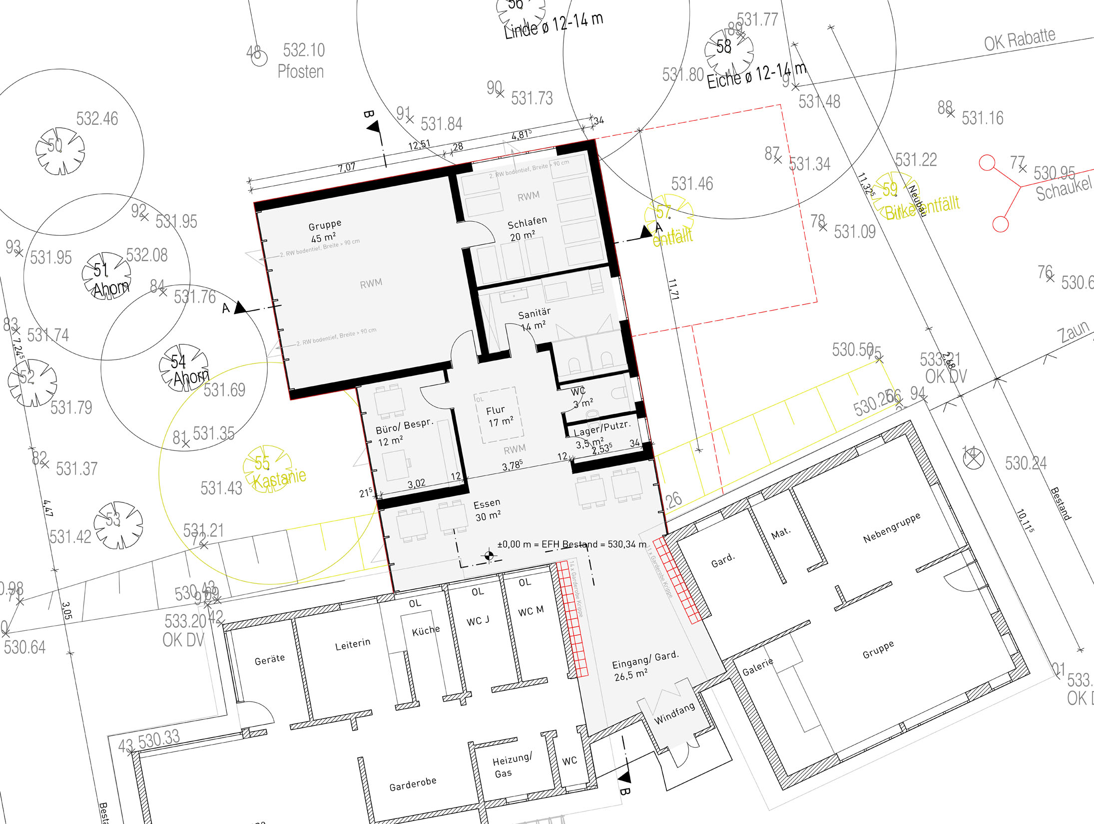
Die Gemeinde Bihlafingen ist ein Ortsteil der Großen Kreisstadt Laupheim. Der dortige zweigruppige Kindergarten musste um eine U3-Gruppe erweitert werden. Dies hat man durch den Anbau eines Moduls „Clevere Kita“ erreicht, welches im Bereich des bestehenden Eingangs „angedockt“ wurde. Alt- und Neubau werden zentral durch das Foyer erschlossen. Der dortige Garderobenbereich wurde erweitert. Im Neubau befindet sich der neue gemeinsame Essensbereich, ein Büro für die Leitung, ein Neben- bzw. Abstellraum sowie der neue Gruppenraum samt Schlaf- und Sanitärbereich. Der Gruppenraum ist so konzipiert, dass er später alle Anforderungen für eine Umnutzung vom Kita- zum Kiga-Gruppenraum erfüllt.
- Bauherr
- Große Kreisstadt Laupheim
- Planung
- Hullak Rannow Architekten
- Team
- Ingenieurbau Häussler, Conné van d´Grachten (Fotos)