
Schwabmünchen
Kita-Erweiterung
- 2014
- BRI 1.199 m3
- LP 1-8
Clever
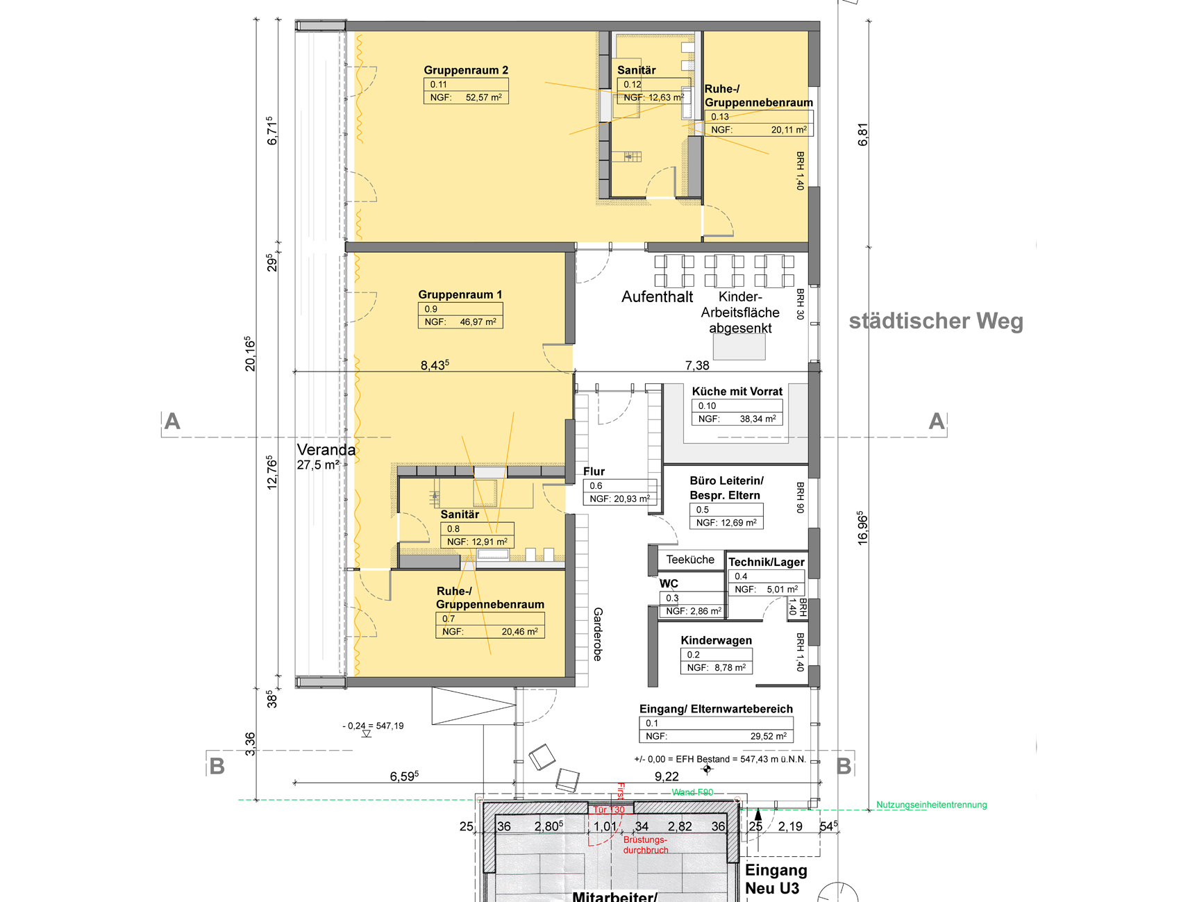
Der bestehende Luise-Scheppler-Kindergarten in Schwabmünchen wurde um zwei U3-Gruppen erweitert. Dabei wurde das von Hullak Rannow Architekten entwickelte Modulsystem „Die Clevere Kita“ verwendet. Allerdings mussten die Module auf die bayrischen Belegungszahlen angepasst werden. Die Clevere Kita ist ursprünglich auf Baden-Württemberg ausgerichtet. Dort finden maximal zehn Kinder in einer Krippengruppe Platz. In Bayern sind das dagegen 15 Kinder.
- Bauherr
- Stadt Schwabmünchen
- Planung
- Hullak Rannow Architekten
- Team
- Ingenieure Haag und Tar
Ingenieurbüro Scherraus
epu - elektroplanung ulm gmbH
mhd
Integral-Ingenieure
Patrick Schmidt (Fotos)