
Magdalena-Neff-Schule
Wettbewerb Schulerweiterung
- 2015
- BGF 630 m2
- Wettbewerb
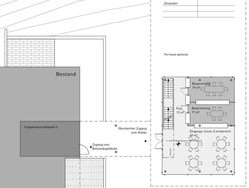
Erweiterung der Magdalena-Neff-Schule in Ehingen in Holzelementbauweise.
- Bauherr
- Landratsamt Alb-Donau-Kreis
- Planung
- Hullak Rannow Architekten
- Team
Erweiterung der Magdalena-Neff-Schule in Ehingen in Holzelementbauweise.