
Lukaskirche
Umgestaltung der denkmalgeschützten Lukaskirche
- 2014
- BRI 4.005 m3
- LP 1-8
Allgemein
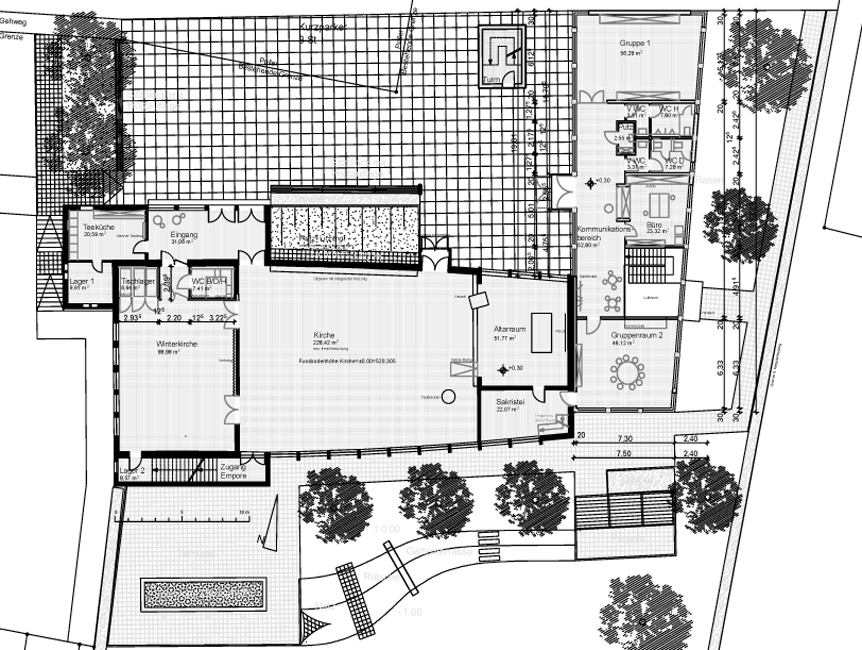
Einbau einer dreigruppigen Kindertagesstätte in das Gartengeschoss mit ergänzenden Maßnahmen im Kircheninnern und Anbau von Kirchenräumen
Auch dieses Kirchenprojekt wurde in Kooperation mit der IBS Ingenieurgesellschaft mbH durchgeführt. Nachdem die Kirche in der Planungsphase unter Denkmalschutz gestellt wurde, war das zuerst erarbeitete Konzept hinfällig. Es galt, eine dem Denkmalschutz entsprechende Lösung zu finden:
- Bauherr
- Evangelische Gesamtkirchengemeinde Ulm
- Planung
- Hullak Rannow Architekten für die IBS Ingenieurgesellschaft mbH
- Team
- Martina Strilic (Fotos)