
Kita Wielandstraße
Erweiterung Kita Wielandstraße
- 2009
- BRI 1 m3
- LP 1-8
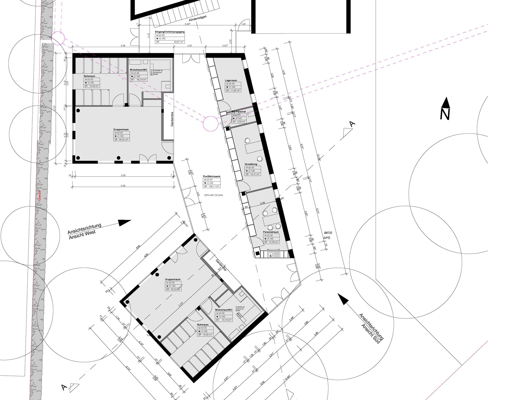
Der erhöhte Bedarf an Plätzen für Kinder unter 3 Jahren veranlasste die Stadt Ulm, ihr Angebot zu verbessern. Ein Anbau sollte die bestehende Kita um 2 Gruppen für unter 3-jährige erweitern. Ziel war es, ein Gebäude zu entwerfen, das die Bedürfnisse der unter 3-jährigen mit denen der über 3-jährigen vereinbart. So entstand ein u-förmiges Gebäude, das auf der dem alten Kitagarten zugewandten Seite einen sehr robusten „Rücken“ hat und sich zum Innenhof wie ein „weicher Kern“mit einer Holz-Glasfassade öffnet.
- Bauherr
- Stadt Ulm, Zentrales Gebäudemanagement
- Planung
- Rannow Architekten
- Team
- Gruoner + Partner, Carpus Generalplaner Ulm GmbH, IB Häberle