
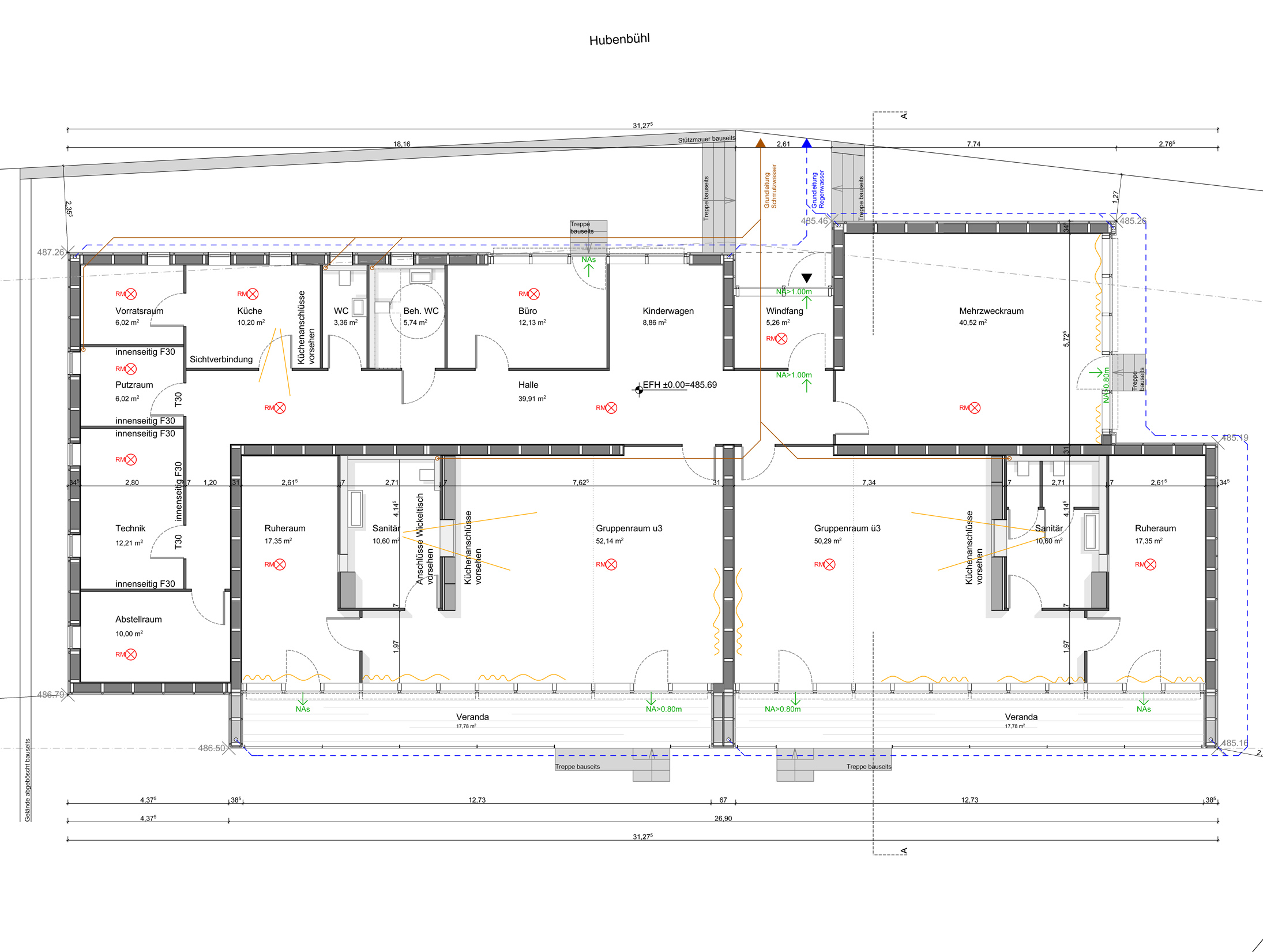
Kita Hubenbühl
Neubau einer Kindertagesstätte mit einer u3 und einer ü3 Gruppe
- 2013
- BRI 1.528 m3
- LP 1-9
U3-Ausbauoffensive
Im Rahmen der U3-Ausbauoffensive wurde von Hullak Rannow gemeinsam mit der Stadt Ulm das modular aufgebaute System – Die Clevere Kita – entwickelt. Damit konnte man in einem bundesweiten Wettbewerb überzeugen. An fünf Standorten sind Gebäude für zehn Kita-Gruppen in Ulm fertiggestellt. Für den Neubau der Kita Hubenbühl wurden zwei Standard- und mehrere Sondermodule zusammengefügt.
- Bauherr
- Stadt Ulm, Zentrales Gebäudemanagement
- Planung
- Hullak Rannow Architekten für die IBS Ingenieurgesellschaft mbH
- Team
- Martina Strilic (Fotos)