
Haus H
- 2011
- BRI 760 m3
- LP 1-9
Zum Entwurf
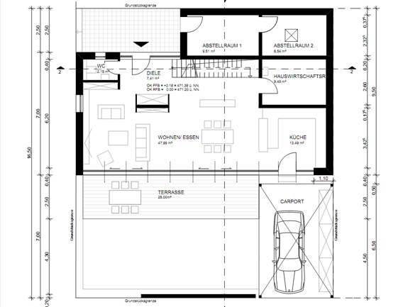
Auf einem kleinen städtischen Grundstück in der Ulmer Oststadt ist dieses nicht unterkellerte Einfamilienhaus mit kompaktem Baukörper und flachem Satteldach entstanden. Der eingeschossige Anbau, in dem die Technik des Hauses untergebracht und Platz für Fahrräder und Sonstiges vorhanden ist, wurde auf der nördlichen Grenze des Grundstücks platziert. Hier befindet sich auch der Hauptzugang des Hauses. Ein weiterer Zugang, direkt in die Küche, kann trockenen Fußes vom Carport aus erfolgen. Im Süden des Erdgeschosses findet offenes Wohnen statt. Hier folgen entlang der raumhoch verglasten Fassade Küche, Essen und Wohnen, welches durch Schiebeelemente abgetrennt werden kann. Eine offene Treppe an der Nordseite des Gebäudes, durch ein Thekenmöbel vom Essbereich getrennt, führt in das Obergeschoss. Über einen großzügigen Flur gelangt man in die einzelnen Räume der Kinder, das Schlafzimmer und die Bäder. Viel Stauraum bieten die vom Schreiner gefertigten Einbaumöbel unter der Treppe, der Garderobennische und das auf Sitzhöhe gefertigte Schrankelement mit anschließender Bücherwand im Wohnbereich. Im Garten wurde eine großzügige Holzterrasse entlang der Glasfassade angelegt, die durch Markisen im Sommer verschattet werden kann. Schutz vor Einblicken bieten Sichtbetonwände, eine dichte Heckenbepflanzung und eine Abstellbox unter dem Carport zum Nachbar hin.
- Bauherr
- Familie H
- Planung
- Hullak Rannow Architekten
- Team
- Farouk Massmann, Silke Siegert, Martina Strilic (Fotos)