
Haus F
- 2014
- BRI 1.417 m3
- LP 1-8
schwierige Gründungssituation
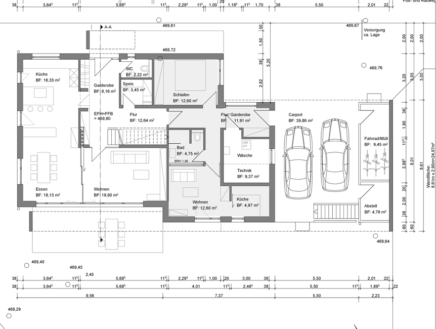
Auf dem Gelände einer Gärtnerei in Langenau, die sich wiederum auf einem ehemaligen Steinbruch befand, ist dieses schlichte Einfamilienhaus mit kompaktem Baukörper und flachem Satteldach entstanden. Aufgrund der schwierigen Gründungssituation wurde auf ein komplettes Kellergeschoss verzichtet. Ein unbeheizter Lagerkeller wurde unter dem Carport angeordnet. Dieser ist durch einen separaten Treppenabgang zugänglich.
Der Haupteingang des Gebäudes befindet sich auf der Nord-Ost-Seite. Vom Carport aus gelangt man in die Einliegerwohnung. Im Bereich des Carports an der Grundstücksgrenze sind zwei Abstellräume angeordnet. Dort können unter anderem Räder und Müll abgestellt werden. Auch die Haustechnik ist im Carportbereich untergebracht, allerdings direkt im Haus. Ein besonderes Gestaltungselement ist der Rahmen aus Sichtbeton, der Carport und Haus optisch miteinander verbindet. Zusätzlich dient dieser als passiver Sonnenschutz für den Wohn- und Essbereich. Das Haus wurde mit einem zentralen Lüftungsgerät mit Wärmerückgewinnung und integrierter Luft-Wärmepumpe ausgestattet und ist somit auf dem neuesten Stand der Technik.
- Bauherr
- Familie F
- Planung
- Hullak Rannow Architekten
- Team
- Architekturbüro Otto, Ingenieurbüro Will, Haag und Tar, Martina Strilic (Fotos)