
Familie B.
- 2010
- BRI 1.100 m3
- LP 1-9
Umbau
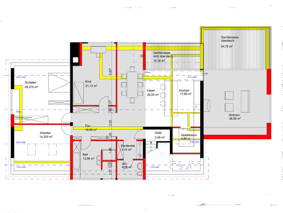
Ziel der Bauaufgabe war es, das bestehende Haus aus dem Jahre 1980 energetisch zu sanieren und die bestehende Wohnung im Obergeschoss umzubauen. Es entstand eine loftähnliche Wohnung mit einzigartigen Aus- und Durchblicken. Zu Beginn wurde fast das komplette Obergeschoss entkernt und der gesamte Mittelteil des Daches abgebaut. Dieses Geschoss war nun komplett im Rohbauzustand. Anschließend wurden eine Gaube sowie die neuen Wände als
Holzrahmenwände eingesetzt. Die umgebaute Wohnung besticht durch ihre lichtdurchflutete Offenheit und ihre Ausblicke. Großflächige Schiebefenster lassen den Innen- und Außenraum verschmelzen. Die Dachterrasse verstärkt diesen Eindruck noch. Der neu eingebaute Kaminofen trägt zusätzlich zum angenehmen Raumgefühl bei.
- Bauherr
- Familie B.
- Planung
- Hullak Rannow Architekten
- Team
- Dipl.Ing.(FH) Klaus König in Planungsgesellschaft ULM-Gerstetten LTD&CO.KG, Locher Haustechnik, Elektro Wanner, Martina Strilic (Fotos)