F3 Ulm

Neubau Flüchtlings­unterkünfte
  • 2015
  • BRI 18.607 m3
  • Angebot Total­unternehmer­leistung

Ausgangslage

Hullak Rannow hat gemeinsam mit der IBS Ingenieurgesellschaft mbh und dem Bauteam, mit dem man schon die fünf Kitas in Ulm gebaut hat, an den beschränkten Wettbewerben für den Neubau mehrerer Flüchtlingsunterkünfte in Ulm teilgenommen. Die Teilnahme ist nach vorausgegangenem öffentlichem Teilnahmewettbewerb erfolgt.  Zwei Angebote für die Totalunternehmerleistung am Böfinger Weg und Wiblinger Ring wurden abgegeben.

Bauherr
Stadt Ulm, Zentrales Gebäude­management
Planung
Hullak Rannow Architekten für die IBS Ingenieurgesellschaft mbH
Team
Ingenieure Haag und Tar, MHD Brandschutz, Integral Ingenieure, Holzbau Georg Rösch, Schreinerei Junginger, Steck und Partner GmbH, Benz Elektro GmbH, Horst Mayer Metallbau - Schlosserei
vor.weg.weisen

Zum Entwurf

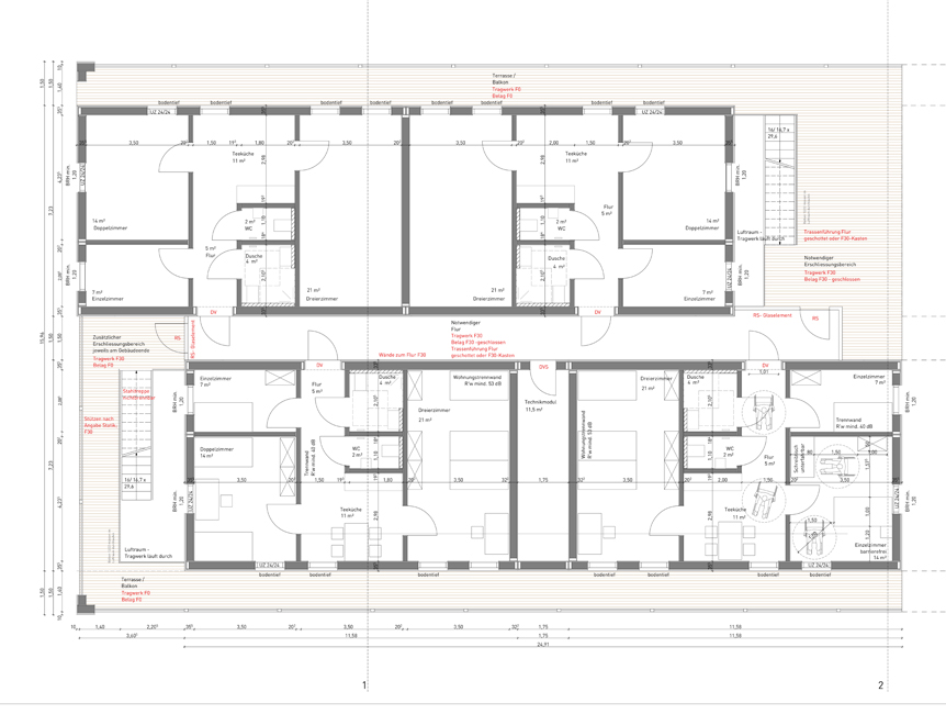
Der Entwurfsgedanke ist, lebenswerte Wohnbereiche für Flüchtlinge, trotz geringen Budgets, zu schaffen. Modulare Wohn- und Sondernutzungseinheiten werden auf einer Plattform (Geschossdecken) so angeordnet, dass definierte Außenbereiche entstehen. So wird trotz der großen Anzahl an Menschen und des begrenzten Flächenbedarfs pro Person versucht, genügend Bewegungs- und Rückzugsfläche zu schaffen. Die an den Erschließungsachsen angeordneten Grünbereiche sollen eine Verbindung zwischen Außen- und Innenraum herstellen. Zudem entsteht der Eindruck, die Natur fließt durch das Gebäude und trägt somit zur Lebensqualität der Bewohner bei. Gemäß den Vorgaben des Zentralen Gebäudemanagements der Stadt Ulm besteht eine Wohneinheit aus einem 1er-Zimmer, einem 2er-Zimmer und einem 3er-Zimmer, bietet Platz für sechs Bewohner. Die Bereiche Küche und Aufenthalt sowie Sanitär sind in der mittigen Achse des Wohnmoduls untergebracht. Jede Wohneinheit hat direkten Zugang zum umlaufenden Balkonbereich. Raumhohe Fenster ermöglichen den Zugang. Alle 2er-Zimmer einer Wohneinheit können rollstuhlgerecht umfunktioniert werden, was den Anforderungen nach LBO BW 2015 entspricht. Eine spätere Nachrüstung mit Aufzug ermöglicht diese Nutzung dann ebenfalls im Obergeschoss. Der Verwaltungsbereich, zentral am Eingangsbereich angeordnet, lässt den Bewohnern und Sozialarbeitern ausreichend Platz für Besprechungen, Schulungen und Aufenthalt. Durch die bewusste Anordnung der Außen- und Erschließungsbereiche ist eine mögliche Nachnutzung, z.B. als Studentenwohnheim oder Wohnhaus für sozial schwächer Gestellte, möglich und bietet ausreichend Aufenthalts- und Rückzugsmöglichkeiten außerhalb der Wohneinheiten.