
Concordia
Aufstockung Concordenhaus
- 2011
- BRI 207 m3
- LP 1-8
Verbindungsleben
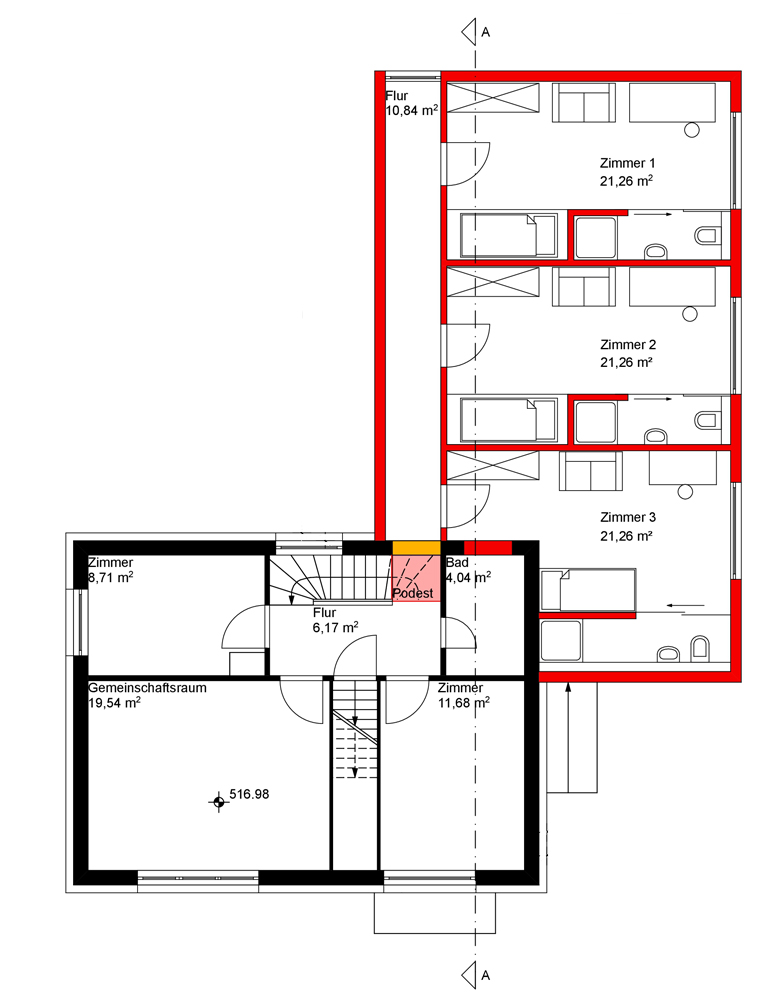
Die Landsmannschaft Concordia Chemnitz zu Ulm betreibt seit 1973 ihr Haus in der Heidenheimer Straße in Ulm als Concordenhaus. Das Gebäude mit Satteldach ist zweigeschossig mit einem überhohen Anbau, indem der Fechtraum untergebracht ist. Das bestehende Haus wurde im Jahre 2010 renoviert. 2011 erfolgte dann die Erweiterung mit drei zusätzlichen Studentenzimmern über dem bestehenden Fechtraum.
- Bauherr
- Landsmannschaft Concordia Chemnitz zu Ulm
- Planung
- Hullak Rannow Architekten
- Team
- oeco - planing UG, , Martina Strilic (Fotos)