
Bürogebäude winkler
Neubau Bürogebäude für die winkler Unternehmensgruppe
- 2015
- BRI 14.207 m3
- LP 1-5
neues Bürogebäude
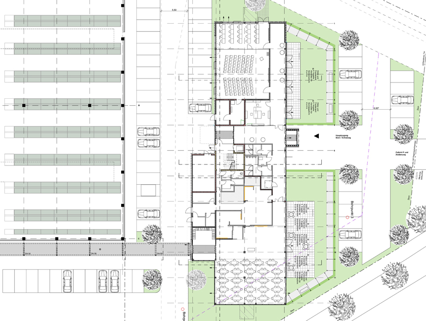
Das neue Bürogebäude der winkler Unternehmensgruppe wurde von Hullak Rannow zusammen mit dem neuen Logistikzentrum für den Investor, die MS Immo Donautal GmbH & Co. KG im Ulmer Donautal geplant. Das Bürogebäude nimmt im Erdgeschoss ein Casino sowie Seminar- und Schulungsräume auf. In den oberen Etagen befinden sich die Büros. Ein schwebendes Vordach verbindet das Logistikcenter mit dem Bürogebäude. Dadurch ist eine fußläufige Anbindung bei jedem Wetter für alle Mitarbeiter möglich. Das Gebäude, insbesondere das Casino mit den Schulungsräumen, soll die Kommunikation zwischen allen Mitarbeitern der Firmengruppe unterstützen. Die Büros in den Obergeschossen sind als Zellenbüros ausgeführt.
- Bauherr
- MS Immo Donautal GmbH & Co. KG
- Planung
- Hullak Rannow Architekten
- Team
- Statix GmbH, IB Fritzsche, IB Puscher, IB Muffler, Martina Strilic (Fotos)