Autohaus Kreisser

Neubau eines Autohauses für Gebrauchtwagen und Service
  • 2008
  • BRI 6.880 m3
  • LP 1-9

Städtebau

Der Neubau des Autohaus Kreisser an dieser Stelle des Stadtgebietes von Ulm steht als Bindeglied zwischen dem „Wohnen und Arbeiten“ und dem Bereich der „Automeile“. Funktional ein vollwertiges Mitglied der direkt angrenzenden Autohäuser und gestalterisch angepasst an die Ansprüche des Mischgebietes im Vorzeige-Sanierungsviertel des Stadtregal Areals (Umnutzung des historischen Magirus-Fabrikgebäudes, mehrfach preisgekrönt).

Bauherr
Autohaus Kreisser
Planung
Rannow Architekten (über IBS)
Team
Röder Ingenieure, Ott Ingenieure, Schmidt König Lichtplaner, Armin Buhl (Fotos)
neu.bau.art

Im Detail

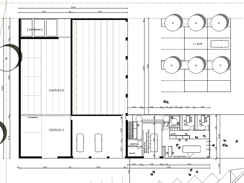
Der Neubau des Autohauses für Audi-Service und Gebrauchtwagen ergänzt das bestehende VW-Autohaus, das sich in der näheren Umgebung befindet. Der Neubau des Autohauses mit ca. 1.500 qm Nutzfläche umfasst die verschiedenen Nutzungen Spenglerei (5 AP), Audi-Service (3 AP), Reifenhotel, Verkaufsräume, Sozialräume und die entsprechend notwendigen Außenflächen. Diese wurden funktional und gestalterisch aufeinander abgestimmt.

Das lange zweigeschossige Gebäude steht in der Flucht der östlichen und orientiert sich in der Höhe an der westlichen Nachbarbebauung. Dahinter gliedert sich der etwas niedrigere Teil mit Werkstätten, Spenglerei und Lager an. Die Verkaufsflächen befinden sich auf dem freieren östlichen Grundstücksteil und die Flächen mit Werkstattcharakter auf dem zurückliegenden westlichen. Im Inneren wurde ein eigenständiges sehr offenes Entwurfskonzept realisiert. Ein- und Ausblicke zwischen Werkstätten, Teilen der Sozialbereiche und den Kundenzonen spiegeln den transparenten und kundenorientierten Ansatz wieder.

Energetisch wurden hohe Ansprüche jedoch ohne hoch technische Lösungen umgesetzt. Die Verschattung der großen Glasflächen erfolgt durch eine feststehende Membran, die gleichzeitig wesentliches gestalterisches Element ist. Über eine Nachtlüftung werden die massiven Bauteile gekühlt. Die Dachbegrünung sämtlicher Dachflächen trägt entsprechend zur Regulierung des anfallenden Regenwassers und der Innentemperaturen bei.