
Anbau Birkenweg
- 2016
- BRI 690 m3
- LP 1-8
Aufgabenstellung
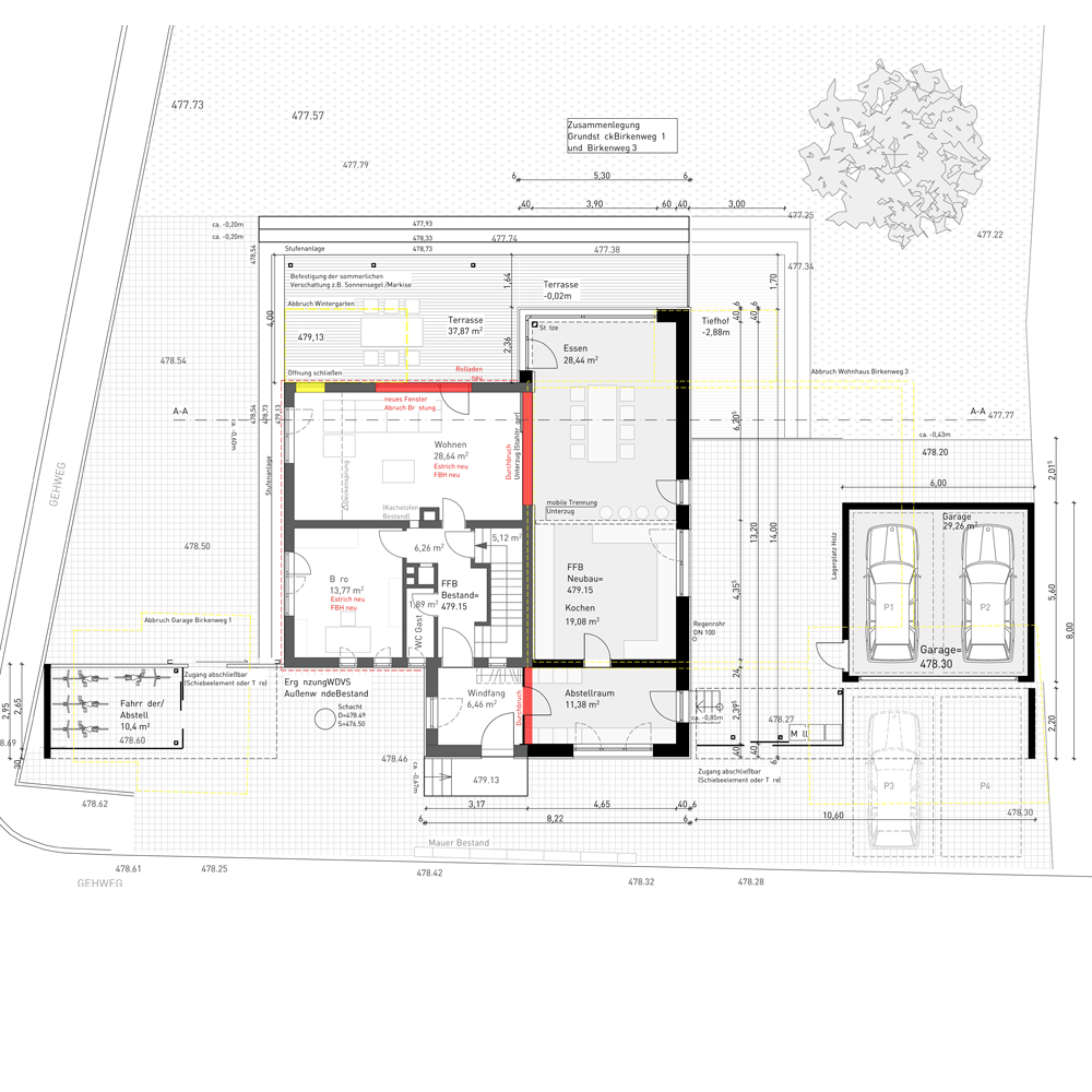
Aufgabe war es, das bestehende Haus im Birkenweg 1 der Familie E. an Wohnraum zu erweitern. Durch den Erwerb der nachbarlichen Doppelhaushälfte Birkenweg 3 konnte eine Erweiterung geplant werden.
Haus Nr. 1 war in erheblich besserem Zustand – mit neuem Dach, angebautem Windfang und neuer technischer Ausstattung. Haus Nr. 3 war so marode, dass man sich dazu entschied, diesen Teil abzureißen.
Entwurfskonzept war nun, dem Satteldachhaus einen Neubau im Westen anzugliedern, der sich an das bestehende Haus anlehnt. Der Flachdachbau passt sich in der Höhe an den vor ein paar Jahren ergänzten Windfang an. Durch die durchgehende Fassadenbekleidung wirkt der Windfang und der Neubau wie aus einem Guss. Das Untergeschoss wurde aus WU-Beton ausgeführt, Erd- und Obergeschoss komplett aus Holzfertigteilen erbaut (Wände und Decken System Leno-Tec Massivholzhaus).
Die ehemaligen Anbauten (Garage, Terrassierungen und Wintergarten) wurden rückgebaut, um die Außenanlage passend zum Ensemble Bestand / Neubau gestalten zu können. Eine großzügige Stufenanlage fasst die Terrasse und verbindet das erhöhte Erdgeschoss mit dem Garten. Die Straßenseite im Norden wird durch neue Vordächer aus schlichtem Beton gesäumt und bewahren die gewünschte Privatsphäre. Die Dächer bieten Platz für eine "Fahrradbox" an der Ostseite und im Westen für eine Doppelgarage.
- Bauherr
- privat
- Planung
- Hullak Rannow Architekten
- Team
- Jürgen Mayer
Patrick Schmidt (Fotos)